The apartments are connected to The Erskine Home within a safe and peaceful environment, providing a dedicated car parking space and access to the beautiful grounds of the Erskine Veterans Village in Bishopton.

 

The Apartment Facilities

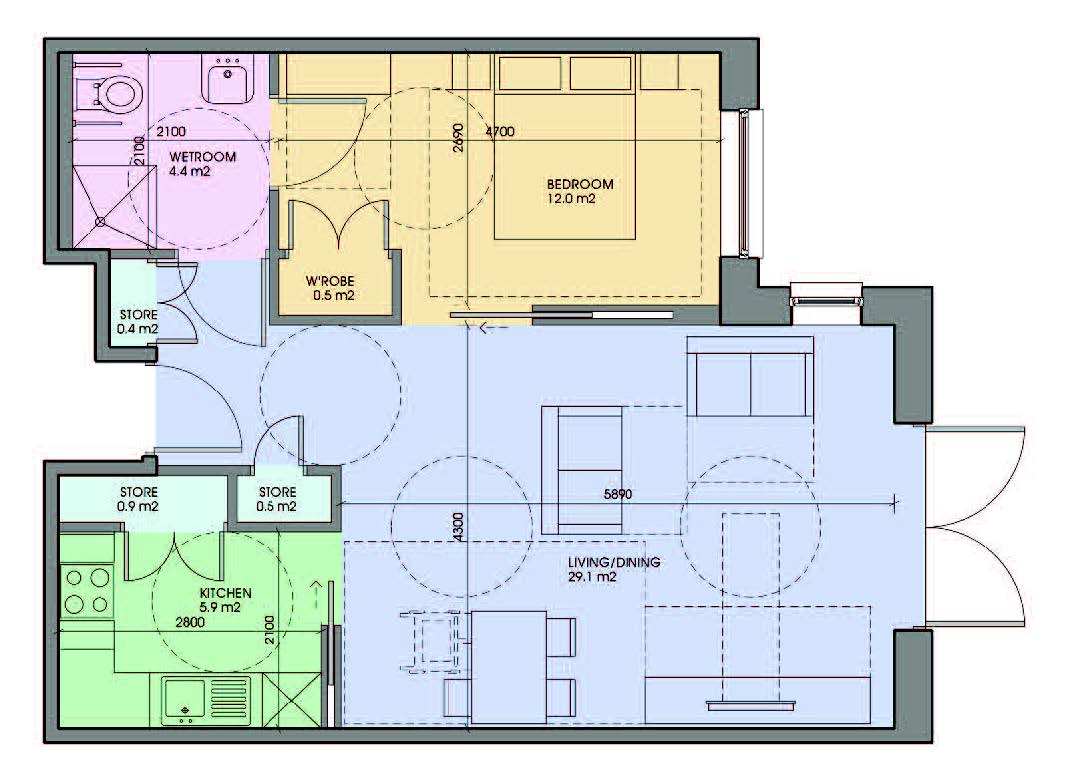
The apartments have:

  • Hallway offset from the main corridor
  • Living room with patio doors to outside area
  • Private seating area outdoors
  • Double bedroom with fitted wardrobe
  • Double access wet room with hoists if required
  • Kitchenette with white goods as required
  • Satellite TV and telephone point

 

Services Available

The following services, providing regular or occasional support, are available for an additional charge.

Call alarm response, Shop, Housekeeping Service, Hairdresser, Laundry, Café, Podiatry, Provision of meals, Physiotherapy and Recreation Activities

Each flat is self-contained but tenants have the opportunity to buy meals from Harry’s Cafe within The Erskine Home and access advice and support through the Activities Centre and visiting charity representatives.

The rent and service charges are set at a competitive rate and will include utilities. These charges will be subject to annual review.

Located close to the M8 motorway and public transport links makes Glasgow City Centre accessible within 15 minutes. 

Who is Eligible?

Anyone who has served as a member of one of HM Armed Forces as a Regular or Reservist or on National Service or were:

  • A member of the Merchant Marine and were deployed on active service, in support of the armed forces
  • A member of the Royal Fleet Auxiliary
  • A member of the Home Guard

How the Apartments are Allocated

Priority allocation will be given to:

  • Disabled Service men and women who have been injured on duty and are about to leave the forces and Veterans who are disabled and/or in receipt of a War Pension or Armed Forces Compensation Scheme Payment, with priority based on level of disability.
  • Service men and women who are about to leave the forces and Veterans who have an accommodation need.